- Woonoppervlakte
- Circa 32 m²
- Inhoud
- Circa 105 m³
- Bouwjaar
- Gebouwd in 1983
- Aantal kamers
- 1 kamers (1 slaapkamers)
Please find English version below!
Licht en praktisch studioappartement (ca. 31 m²) met royaal balkon en schitterende binnentuin in de geliefde Indische Buurt
Op zoek naar een comfortabele en betaalbare plek in Amsterdam-Oost? Deze slim ingedeelde studio van ca. 31 m² op de derde verdieping biedt alles wat je nodig hebt: een fijne woon- en slaapruimte, een heerlijk groot balkon én toegang tot een prachtige gemeenschappelijke binnentuin. Gelegen aan de rustige achterzijde van een verzorgd complex, midden in de populaire Indische Buurt, woon je hier heerlijk rustig maar toch met alle levendigheid van de stad binnen handbereik.
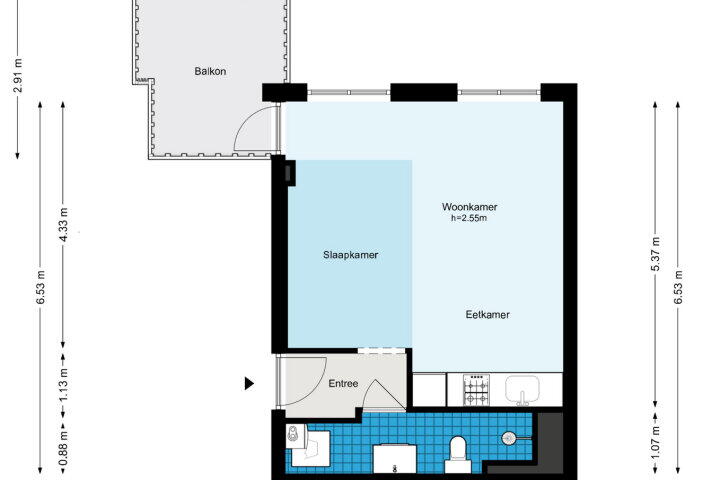
INDELING:
Begane grond:
Gemeenschappelijke entree, toegang tot de eigen berging in de onderbouw en het nette trappenhuis.
Derde verdieping:
De lichte woon-/slaapkamer kijkt uit over de groene binnentuin en biedt direct toegang tot het brede balkon op het oosten — perfect voor een kop koffie in de ochtendzon. De inbouwkeuken is compact maar compleet en voorzien van alle benodigde apparatuur. De badkamer beschikt over een douche, wastafel en toilet, en er is plek voor een wasmachine.
LIGGING EN BEREIKBAARHEID:
De Molukkenstraat ligt in het hart van de levendige Indische Buurt, tussen het Oostelijk Havengebied, Watergraafsmeer en Science Park. Op loopafstand vind je talloze koffietentjes, buurtwinkels, hippe eettentjes en supermarkten. Voor ontspanning wandel je zo naar het Oosterpark of Flevopark.
Openbaar vervoer is uitstekend: trams, bussen én station Muiderpoort liggen op slechts enkele minuten lopen. Met de auto rijd je via de nabijgelegen ring A10 zo de stad in of uit. Parkeren gaat via het vergunningstelsel van de gemeente Amsterdam.
VERENIGING VAN EIGENAREN:
De actieve en financieel gezonde VvE “Piramide” wordt professioneel beheerd door Stichting Ymere. Bijdrage: € 100,55 per maand.
JURIDISCHE EIGENDOMSSITUATIE:
Appartement is gelegen op erfpacht uitgegeven door de gemeente Amsterdam. Het eeuwigdurend recht van erfpacht is afgekocht tot 1 maart 2032 (AB 2016). Daarna is de erfpacht onder gunstige voorwaarden vastgezet op € 195,56 per jaar (indexatie van toepassing). De erfpacht eeuwigdurend afkopen kan ook nog voor een eenmalig bedrag van ca. € 6.975,-
KENMERKEN:
- 1-kamer studio appartement van ca. 31 m².
- Groot balkon gelegen op het oosten.
- Rustige ligging met uitzicht op een groene binnentuin.
- Aparte berging in de onderbouw.
- Professioneel beheerde VvE.
- VvE bijdrage: € 100,55 per maand.
- Fraai aangelegde gemeenschappelijke binnentuin, exclusief voor bewoners.
- Levering in overleg.
NOTARIS EN OPLEVERING:
Het opstellen van de koopakte dient plaats te vinden bij een notariskantoor binnen de Notariële Ring Amsterdam/Amstelveen binnen 5 werkdagen na mondelinge overeenstemming.
Aanvaarding in huidige staat, niet bezwaard, leeg en ontruimd, vrij van huur en gebruik. De oplevering zal in nader overleg plaatsvinden.
Toelichtingsclausule NEN2580
De Meetinstructie is gebaseerd op de NEN2580. De Meetinstructie is bedoeld om een meer eenduidige manier van meten toe te passen voor het geven van een indicatie van de gebruiksoppervlakte. De Meetinstructie sluit verschillen in meetuitkomsten niet volledig uit, door bijvoorbeeld interpretatieverschillen, afrondingen of beperkingen bij het uitvoeren van de meting.
English version:
***This property is listed by a MVA Certified Expat Broker***
Bright and Practical Studio Apartment (approx. 31 m²) with Spacious Balcony and Beautiful Communal Garden in the Popular Indische Buurt
Looking for a comfortable and affordable place in Amsterdam-East? This cleverly designed studio of approximately 31 m², located on the third floor, offers everything you need: a pleasant living/sleeping area, a generous east-facing balcony, and access to a beautifully maintained communal garden. Situated at the quiet rear of a well-kept complex in the heart of the sought-after Indische Buurt, this home provides peaceful living while still placing the vibrancy of the city right at your doorstep.
LAYOUT:
Ground floor:
Communal entrance, access to the private storage unit in the basement, and the neat staircase.
Third floor:
The bright living/sleeping area overlooks the lush communal garden and gives direct access to the wide east-facing balcony — perfect for enjoying your morning coffee in the sun. The built-in kitchen is compact yet fully equipped with all necessary appliances. The bathroom features a shower, washbasin, and toilet, and there is space for a washing machine.
LOCATION & ACCESSIBILITY
Molukkenstraat is located in the heart of the lively Indische Buurt, between the Eastern Docklands, Watergraafsmeer, and Science Park. A variety of cafés, neighborhood shops, trendy eateries, and supermarkets can be found within walking distance. For relaxation, you can stroll to the nearby Oosterpark or Flevopark.
Public transport connections are excellent: trams, buses, and Muiderpoort Station are just a few minutes’ walk away. By car, the A10 ring road is easily accessible, allowing you to reach other parts of the city or leave Amsterdam swiftly. Parking is available through the municipal permit system.
HOMEOWNERS’ ASSOCIATION (VvE):
The active and financially sound homeowners’ association “Piramide” is professionally managed by Stichting Ymere.
Monthly contribution: € 100.55.
LEGAL OWNERSCHIP SITUATION:
The apartment is situated on leasehold land issued by the Municipality of Amsterdam. The perpetual leasehold canon has been bought off until 1 March 2032 (AB 2016). Thereafter, the annual leasehold fee has been fixed under favorable conditions at € 195.56 per year (subject to indexation). Perpetual buyout is still possible for a one-time payment of approximately € 6,975.
FEATURES:
• 1-room studio apartment of approx. 31 m².
• Large east-facing balcony.
• Quiet location overlooking a green communal garden.
• Separate private storage unit in the basement.
• Professionally managed homeowners’ association.
• VvE contribution: € 100.55 per month.
• Beautifully landscaped communal garden for residents only.
• Transfer in consultation.
NOTARY & TRANSFER:
The purchase agreement must be executed by a notary within the Notarial Ring Amsterdam/Amstelveen within five working days after verbal agreement.
Transfer will take place in its current condition, unencumbered, vacant and cleared, free of rental or use rights. The delivery date will be agreed upon in consultation.
NEN2580 MEASUREMENT DISCLAIMER:
The measurement guidelines are based on the NEN2580 standard. The purpose of these guidelines is to provide a uniform method of measurement to indicate the usable floor area. However, variations in measurement outcomes may still occur due to differences in interpretation, rounding, or limitations during the measurement process.
Overdracht
- Vraagprijs
- € 295.000 k.k.
- Status
- Verkocht
- Aanvaarding
- In overleg
- Bijdrage VvE
- € 100.55 p/m
Bouw
- Object type
- Bovenwoning, appartement
- Soort bouw
- Bestaande bouw
- Bouwjaar
- 1983
- Soort dak
- Zadeldak
Oppervlakte en inhoud
- Woonoppervlakte
- 32 m²
- Inhoud
- 105 m³
- Externe bergruimte
- 3 m²
- Gebouwgeb. buitenruimte
- 7 m²
Indeling
- Aantal kamers
- 1 kamers (1 slaapkamers)
- Aantal badkamers
- 1 badkamer
- Badkamervoorzieningen
- Wastafel, inloopdouche, wasmachineaansluiting
- Aantal woonlagen
- 1 woonlaag
- Voorzieningen
- Tv-kabel
Energie
- Energielabel
- C
- Energielabel registratie
- 19-11-2025
- Isolatie
- Dubbel glas
- Verwarming
- Cv-ketel
- Warm water
- Cv-ketel
- Cv ketel
- Intergas combiketel gas gestookt uit 2017 (eigendom)
Buitenruimte
- Ligging
- Aan park, in woonwijk, vrij uitzicht
- Balkon / dakterras
- Balkon
- Tuin
- Achtertuin
- Afmetingen achtertuin
- M² (35 meter diep en 60 meter breed)
- ligging tuin
- Gelegen op het zuidwesten
Bergruimte
- Schuur / berging
- Inpandig
Garage
- Soort garage
- Geen garage
Parkeergelegenheid
- Soort parkeergelegenheid
- Openbaar parkeren, betaald parkeren, parkeervergunningen
VvE checklist
- Inschrijving KvK
- Ja
- Jaarlijkse vergadering
- Ja
- Periodieke bijdrage
- Ja, € 100.55 p/m
- Reservefonds aanwezig
- Ja
- Onderhoudsplan
- Ja
- Opstalverzekering
- Ja
Energieverbruik in Amsterdam
Energielabel deze woning
Energielabel C
Publicatie energielabel: 19-11-2025
Stroomverbruik per jaar
(Gemiddelde appartement in Amsterdam)
Gasverbruik per jaar
(Gemiddelde appartement in Amsterdam)
* Cijfers zijn afkomstig van het CBS en bedoeld als indicatie en kunnen verschillen voor deze woning
Indicatie hypotheeklasten
Eigen inleg:
Spaargeld / overwaarde
Rente:
Laagste 10-jaars rente
Laagste 10-jaars rente
2,9% - Centraal Beheer Groen L... - NHG
3,13% - Centraal Beheer Groen... - 80%
Laagste 20-jaars rente
3,29% - Centraal Beheer Groen... - NHG
3,52% - Centraal Beheer Groen... - 80%
Laagste 30-jaars rente
3,41% - Centraal Beheer Groen... - NHG
3,74% - Centraal Beheer Groen... - 80%
Hypotheek:
Bruto maandlasten: € 0 p/m
Netto maandlasten: € 0 p/m
Hoe berekenen we dit?
Het rentepercentage is gebaseerd op de laagste 10 jaars vaste rente voor één hypotheekdeel. De vermelde rente (2.9% met NHG) is gecontroleerd op 14-01-2026. Deze berekening is gebaseerd op een annuïteitenhypotheek die volledig wordt afgelost, waarbij de maandlasten gedurende de gehele looptijd gelijk blijven. De werkelijke rente en netto maandlasten kunnen variëren, afhankelijk van uw persoonlijke situatie en de hypotheekverstrekker. Raadpleeg een financieel adviseur voor een nauwkeurige berekening en advies. Aan deze berekening kunnen geen rechten worden ontleend; het dient enkel als indicatie.
Documentatie
Kadastrale kaart
Leefomgeving
Plattegronden PDF
WOZ waarderapport
BAG uittreksel
Brochure
Bekijk onze website
Bezichtiging
Bod uitbrengen
Waardebepaling
Zoekopdracht
Alles downloaden
Zonnegrenzen bekijken
Op de kaart
Inwoners in Amsterdam
Cijfers voor postcodegebied 1095
- Totaal aantal inwoners
- 14605 inwoners
- Mannen
- 50%
- Vrouwen
- 50%
Inwoners in Amsterdam
Cijfers voor postcodegebied 1095
- tot 15 jaar
- 14%
- 15 tot 25 jaar
- 16%
- 25 tot 35 jaar
- 39%
- 45 tot 65 jaar
- 21%
- 65 en ouder
- 11%
Huishoudens in Amsterdam
Cijfers voor postcodegebied 1095
- Eenpersoons zonder kinderen
- 56%
- Meerpersoons zonder kinderen
- 21%
- Huishoudens zonder kinderen
- 77%
Huishoudens in Amsterdam
Cijfers voor postcodegebied 1095
- Huishoudens met één kind
- 8%
- Huishoudens met meerdere kinderen
- 15%
- Huishoudens met kinderen
- 23%
Woningen in Amsterdam
Cijfers voor postcodegebied 1095
- Woningen voor 1945
- 18%
- Woningen tussen 1945 en 1965
- 1%
- Woningen tussen 1965 en 1975
- 1%
- Woningen tussen 1975 en 1985
- 15%
- Woningen tussen 1985 en 1995
- 15%
Woningen in Amsterdam
Cijfers voor postcodegebied 1095
- Woningen tussen 1995 en 2005
- 13%
- Woningen tussen 2005 en 2015
- 8%
- Woningen na 2015
- 29%
- Huurwoningen
- 80%
- Koopwoningen
- 20%
Overige in Amsterdam
Cijfers voor postcodegebied 1095
- Gemiddelde WOZ waarde
- € 356.000,-
- Personen onder de 65 met uitkering
- 12%
Overige in Amsterdam
Cijfers voor postcodegebied 1095
- Adressen per km²
- 4518
- Stedelijkheid (schaal 1 op 5)
- 100%
Korte feiten over Amsterdam
Amsterdam is de hoofdstad van Nederland. De stad, in het Amsterdams ook Mokum genoemd (afkomstig uit het Jiddisch), ligt in de provincie Noord-Holland, aan het IJ, het Noordzeekanaal en de monding van de Amstel. De stad ligt in de gelijknamige gemeente Amsterdam en heeft 873.338 inwoners (1 januari 2021), Groot-Amsterdam telt 1.459.402 inwoners.
Tel Krop Makelaars
Indien u vragen heeft of u wilt een bezichtiging inplannen, dan kunt u gebruik maken van het formulier hiernaast. Er zal daarna op korte termijn contact met u worden opgenomen.
Buitenveldertselaan 101
1082 VB, Amsterdam
020 - 428 0801 info@telkropmakelaars.nl www.telkropmakelaars.nlContact opnemen
Waarom Tel Krop Makelaars?
Bij elk makelaarskantoor mag men een zekere mate van expertise en professionaliteit verwachten; echter, de makelaars van Tel Krop Makelaars B.V. onderscheiden zich door hun inventiviteit, creativiteit en nuchtere verstand te combineren met deze kerncompetenties. Met een indrukwekkende staat van dienst van meer dan 90 jaar in de regio Groot-Amsterdam, weten onze makelaars precies hoe ze aan de unieke behoeften van elke klant kunnen voldoen en deze op originele wijze vervullen.
Of u nu op zoek bent naar advies, begeleiding bij aan- en verkoop, investeringsmogelijkheden, taxaties of bijzondere objecten, ons dynamische kantoor in Buitenveldert staat klaar om uw woonideeën tot leven te brengen. Wij zetten ons in om ieder verzoek nauwkeurig te analyseren en een gepersonaliseerde aanpak te bieden die past bij uw wensen en verwachtingen. Ons team van ervaren makelaars is altijd op de hoogte van de laatste ontwikkelingen in de vastgoedmarkt en past deze kennis toe om u de best mogelijke service te bieden.
Nieuwste reviews
-
Monica Vargas
Ik ben ontzettend blij met de service van Tel Krop Makelaars, met name met Monique's professionaliteit, eerlijkheid en aandacht om ervoor te...
-
Rolf Kozian
Wat een Top makelaar!! Heel fijn contact met deze makelaar. Handelt snel en adequaat. Weet precies wat belangrijk en relevant is. Heeft ook...
-
Serena Westra
Heel fijn geholpen door Monique. Ze heeft veel expertise en ook een goede portie nuchterheid, wat erg fijn is bij het zoeken van een huis in...